SB Road Commercial
SB Road Commercial
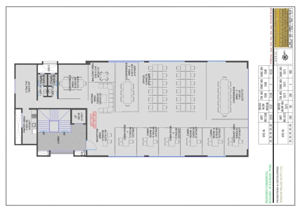
Project Overview
This boutique commercial office building on SB Road, Pune, is designed for businesses seeking exclusivity, visibility, and long-term value. Planned with a single office per floor concept, the development offers privacy, operational efficiency, and a focused working environment ideal for corporate offices, professional firms, and growing enterprises.
The ground floor retail space enhances street presence and accessibility, while the upper levels, from the first to the sixth floor, feature one dedicated office per floor, ensuring an uncluttered layout and a strong corporate identity. Thoughtful planning, prime connectivity, and efficient floor plates make this a standout option in commercial real estate in Pune.
Designed to support productivity, brand presence, and business growth, this commercial office project on SB Road presents a strategic investment opportunity in one of Pune’s most prominent business corridors.
-
Premium Retail & Office Spaces:
7500 sq.ft. retail space & 4500 sq.ft. offices.
- Senapati Bapat Road, Shivajinagar, Pune
Project Highlights

Energy-efficient Glass Facade

Stilt Floor for 2-wheeler Parking
with a 2-wheeler Lift

Earthquake-resistant RCC Framed Structure

3-phase MSEB Meter with MCB

One 8-passenger High-speed Lift

Mechanical puzzle parking

Intelligently Planned Column Grids
for Maximum Usable Space

Exclusive Designer Lobby

Modern & Contemporary Elevation
One for everyone
Solapur is on the fast track of growth, marked by an increasing demand for multiple services and conveniences.
SB Road Commercial is designed to accommodate a variety of businesses that include:
Corporate Offices
Start-up entities
IT Companies
Offices for Architects, Interior Designers, CAs, Pathology Labs, Management Consultants, etc
Enquire Now
Disclaimer: Plot area is below 500 Sq.m. and the Number of tenements is less than 8, the project need not be registered with RERA.
Step Into a Better Business Address
Discover a thoughtfully planned project designed for efficiency, visibility, and long-term use.